Monday, February 18, 2019

Single Story Warm House Plan Perfect For Small Families







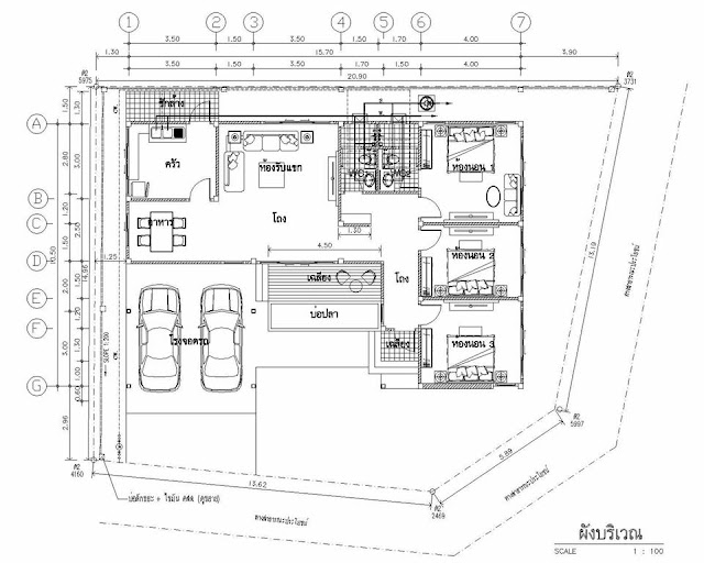
This house has 3 bedrooms and 2 bathrooms. The living area should not exceed 100 square meters. It is good for small families.



































Subscribe to get more videos :